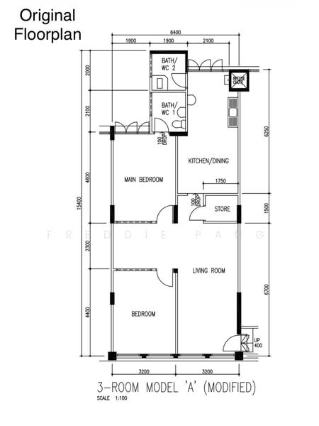
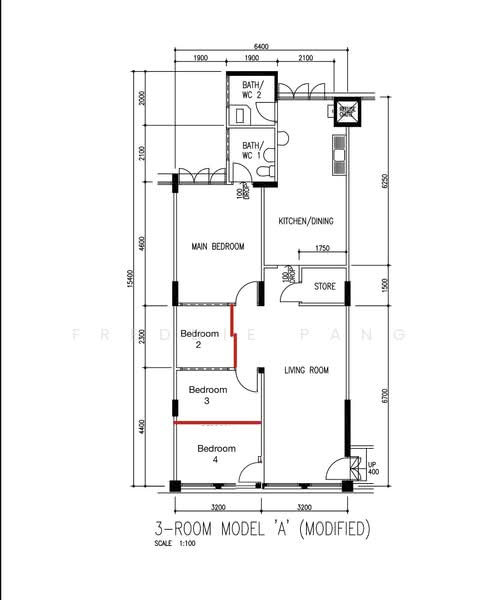
504 Jurong West Street 51 - 1 Units for Sale
Map View
We’ve shown you all the matches
Almost there!
Refining your recommendations.
This may take a few seconds...
504 Jurong West Street 51
504 Jurong West Street 51 640504(D22) Boon Lay / Jurong / Tuas
Summary
504 Jurong West Street 51
Read more
Project details
TypeHDB
Completion year1985
Tenure99-year Leasehold
No. of blocks1
No. of floors4
DeveloperHousing & Development Board (HDB)
Explore PropertyGuru
Properties by ownership









